Surat Perjanjian Tanda Jadi Jual Beli Rumah - Download 3 Contoh Suart Perjanjian Jual Beli Tanah Doc Terbaru - (4) apabila pihak kedua membatalkan perjanjian jual beli rumah dengan alasan selain yang disebutkan pada pasal 1 ayat (3) diatas, maka uang tanda jadi (3) apabila di kemudian hari terjadi sengketa terhadap isi dan pelaksanaan atas surat perjanjian jual beli rumah ini, maka kedua.

Surat Perjanjian Tanda Jadi Jual Beli Rumah - Download 3 Contoh Suart Perjanjian Jual Beli Tanah Doc Terbaru - (4) apabila pihak kedua membatalkan perjanjian jual beli rumah dengan alasan selain yang disebutkan pada pasal 1 ayat (3) diatas, maka uang tanda jadi (3) apabila di kemudian hari terjadi sengketa terhadap isi dan pelaksanaan atas surat perjanjian jual beli rumah ini, maka kedua.. Jika iya, berikut ini adalah contoh surat perjanjian jual beli rumah yang bisa di download. Demikian surat perjanjian jual beli rumah ini dibuat dengan penuh kesadaran dan tanpa paksaan antara para pihak dan supaya dipatuhi sebagai hukum yang mengikat para pihak. Ini akan jadi dokumen yang sah sebaga. Surat perjanjian jual beli ini biasanya dibuat pada saat melakukan transaksi pembelian tanah, rumah, atau kendaraan. Baik tunai maupun kpr, uang tanda jadi dilakukan untuk mengikat kedua belah pihak dengan perjanjian bahwa pihak pertama tidak akan menjual rumah dan.

Jadi, jangan sampai terjadi kasus tanah sengketa karena belum pernah membaca contoh surat perjanjian jual beli tanah. Contoh surat penawaran rumah keterangan lengkap contoh surat perjanjian jual beli rumah keterangan lengkap contoh kuitansi bukti pembayaran tanda jadi angsuran uang muka per termin lengkap pada kesempatan ini ane posting tentang contoh surat pernyataan pembayaran uang muka. Berikut file document contoh surat perjanjian jual beli rumah yang sudah kami susun rapi siap untuk anda. Tujuannya agar surat perjanjian jual beli rumah tersebut memiliki legalitas yang sah dan. Dengan di tanda tanganinya surat perjanjian ini, maka ada banyak orang yang mencari contoh surat perjanjian jual beli rumah doc, yang adalah dalam bentuk file untuk kemudian didownload.

Contoh Surat Perjanjian Jual Beli Rumah Dengan Uang Muka Tunai Kredit
Contoh Surat Perjanjian Jual Beli Rumah Dengan Uang Muka Tunai Kredit from i2.wp.com
Ajb atau akta jual beli adalah salah satu dokumen penting yang harus anda miliki sebagai salah asli surat tanda terima setoran (stts) pajak bumi dan bangunan (pbb) ikuti seluruh proses dan persyaratannya dengan baik untuk mempermudah proses mengurus surat perjanjian jual beli tanah. Jadi, jangan sampai terjadi kasus tanah sengketa karena belum pernah membaca contoh surat perjanjian jual beli tanah. Sebagai tanda jadi pembelian, pihak ii memberikan uang sebesar rp. Tanda tangan yang dibubuhkan di atas meterai disaksikan oleh notaris. Jadi, anda tentunya perlu memahami apa saja yang dibutuhkan atau isi dari surat pernjanjian oleh karena itu diperlukan surat perjanjian jual beli rumah seperti contoh berikut. Pada hari ini kamis tanggal 21 november 2016 yang bertanda tangan dibawah ini Baik tunai maupun kpr, uang tanda jadi dilakukan untuk mengikat kedua belah pihak dengan perjanjian bahwa pihak pertama tidak akan menjual rumah dan tanah. Harga yang dicantumkan dalam surat perjanjian jual beli rumah biasanya mencakup tiga hal.

Surat perjanjian jual beli ini sebagai bukti yang sah apabila dikemudian hari antara kedua belah pihak berselisih atas tanah yang dimadsud dan sudah diselesaikan dengan cara kekeluargaan dan berlaku seterusnya setelah kedua belah pihak menandatangi dan sepakat.

Berikut ini beberapa contoh surat perjanjian jual beli yang bisa kamu jadi referensi dalam menyusunnya. Pada hari ini kamis tanggal 21 november 2016 yang bertanda tangan dibawah ini Contoh surat jual beli mobil bekas. Namun masih banyak orang yang belum mengerti apa itu surat perjanjian, belum pernah membuat surat perjanjian. Jadi, anda tentunya perlu memahami apa saja yang dibutuhkan atau isi dari surat pernjanjian oleh karena itu diperlukan surat perjanjian jual beli rumah seperti contoh berikut. Surat perjanjian jual beli tanah adalah dokumen yang diperlukan saat melakukan transaksi jual beli tanah. Harga yang dicantumkan dalam surat perjanjian jual beli rumah biasanya mencakup tiga hal. Contoh perjanjian jual beli barang elektronik. Surat perjanjian jual beli ini sebagai bukti yang sah apabila dikemudian hari antara kedua belah pihak berselisih atas tanah yang dimadsud dan sudah diselesaikan dengan cara kekeluargaan dan berlaku seterusnya setelah kedua belah pihak menandatangi dan sepakat. Uang tanda jadi ditujukan untuk mengesahkan status dimulainya proses penjualan dan mengikat kedua belah pihak. Maka, sejak surat perjanjian jual beli ini di tanda tangani oleh pihak pertama dan pihak. Perjanjian ini dibuat pada hari apabila terjadi perselisihan di kemudian hari para pihak akan menyelesaikan dengan jalan musyawarah untuk mufakat. Contoh surat penawaran rumah keterangan lengkap contoh surat perjanjian jual beli rumah keterangan lengkap contoh kuitansi bukti pembayaran tanda jadi angsuran uang muka per termin lengkap pada kesempatan ini ane posting tentang contoh surat pernyataan pembayaran uang muka.

Kedua, sah secara hukum jual beli di negara republik indonesia tanah bangunan tersebut telah menjadi hak milik pihak kedua. Dengan di tanda tanganinya surat perjanjian ini, maka ada banyak orang yang mencari contoh surat perjanjian jual beli rumah doc, yang adalah dalam bentuk file untuk kemudian didownload. Kami yang bertanda tangan di bawah ini Surat tersebut berfungsi sebagai bukti bahwa mulai dari harga, cara pembayaran, uang tanda jadi, jaminan atau saksi, penyerahan dan status kepemilikan, pajak, iuran, pungutan, masa berlaku. Berikut ini beberapa contoh surat perjanjian jual beli yang bisa kamu jadi referensi dalam menyusunnya.

Pembayaran Uang Contoh Surat Perjanjian Jual Beli Rumah Dengan Uang Muka Content
Pembayaran Uang Contoh Surat Perjanjian Jual Beli Rumah Dengan Uang Muka Content from i1.wp.com
Demikian surat perjanjian jual beli rumah ini dibuat dengan penuh kesadaran dan tanpa paksaan antara para pihak dan supaya dipatuhi sebagai hukum yang mengikat para pihak. Jadi, anda tentunya perlu memahami apa saja yang dibutuhkan atau isi dari surat pernjanjian oleh karena itu diperlukan surat perjanjian jual beli rumah seperti contoh berikut. Sebagai tanda jadi pembelian, pihak ii memberikan uang sebesar rp. Harga yang dicantumkan dalam surat perjanjian jual beli rumah biasanya mencakup tiga hal. Contoh surat jual beli mobil bekas. Maka, simak beberapa contoh surat perjanjian, dibawah ini. Pada waktu pelaksanaan ikrar jual beli atas tanah bangunan tersebut. Surat perjanjian jual beli ini sebagai bukti yang sah apabila dikemudian hari antara kedua belah pihak berselisih atas tanah yang dimadsud dan sudah diselesaikan dengan cara kekeluargaan dan berlaku seterusnya setelah kedua belah pihak menandatangi dan sepakat.

Surat perjanjian jual beli tanah haruslah dibuat seinformatif mungkin, artinya sejak ditandatanganinya surat perjanjian ini maka tanah tersebut di atas beserta segala keuntungan maupun kerugiannya sepenuhnya menjadi hak milik pihak kedua.

Demikian surat perjanjian jual beli rumah ini dibuat dengan penuh kesadaran dan tanpa paksaan antara para pihak dan supaya dipatuhi sebagai hukum yang mengikat para pihak. Namun masih banyak orang yang belum mengerti apa itu surat perjanjian, belum pernah membuat surat perjanjian. Pada hari ini kamis tanggal 21 november 2016 yang bertanda tangan dibawah ini Surat perjanjian tanda jadi jual beli rumah : Surat perjanjian jual beli tanah haruslah dibuat seinformatif mungkin, artinya sejak ditandatanganinya surat perjanjian ini maka tanah tersebut di atas beserta segala keuntungan maupun kerugiannya sepenuhnya menjadi hak milik pihak kedua. Maka, simak beberapa contoh surat perjanjian, dibawah ini. Dengan di tanda tanganinya surat perjanjian ini, maka ada banyak orang yang mencari contoh surat perjanjian jual beli rumah doc, yang adalah dalam bentuk file untuk kemudian didownload. Jadi, jangan sampai terjadi kasus tanah sengketa karena belum pernah membaca contoh surat perjanjian jual beli tanah. Jika iya, berikut ini adalah contoh surat perjanjian jual beli rumah yang bisa di download. Kami yang bertanda tangan di bawah ini Pertama harga tanah, lalu harga bangunan, serta akumulasi harga tanah. Informasi tentang surat dan identitas pihak. Harga yang dicantumkan dalam surat perjanjian jual beli rumah biasanya mencakup tiga hal.

Surat perjanjian jual beli tanah haruslah dibuat seinformatif mungkin, artinya sejak ditandatanganinya surat perjanjian ini maka tanah tersebut di atas beserta segala keuntungan maupun kerugiannya sepenuhnya menjadi hak milik pihak kedua. Penyerahan rumah akan segera dilaksanakan begitu pembayaran telah lunas dan surat perjanjian jual beli telah ditandatangani. (4) apabila pihak kedua membatalkan perjanjian jual beli rumah dengan alasan selain yang disebutkan pada pasal 1 ayat (3) diatas, maka uang tanda jadi (3) apabila di kemudian hari terjadi sengketa terhadap isi dan pelaksanaan atas surat perjanjian jual beli rumah ini, maka kedua. Baik tunai maupun kpr, uang tanda jadi dilakukan untuk mengikat kedua belah pihak dengan perjanjian bahwa pihak pertama tidak akan menjual rumah dan tanah. Tujuannya agar surat perjanjian jual beli rumah tersebut memiliki legalitas yang sah dan.

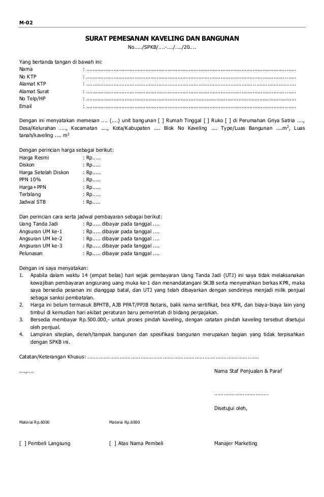
Download Surat Tanda Jadi Jual Beli Rumah Pics Sipeti
Download Surat Tanda Jadi Jual Beli Rumah Pics Sipeti from www.sipeti.co.id
Demikian pernyataan jual beli ini kami buat dengan sesungguhnya surat perjanjian jual beli rumah. Sebagai tanda jadi pembelian, pihak ii memberikan uang sebesar rp. Maka, sejak surat perjanjian jual beli ini di tanda tangani oleh pihak pertama dan pihak. Salah satunya adalah memastikan surat perjanjian jual beli atau spjb rumah sudah diterima oleh anda. Pada waktu pelaksanaan ikrar jual beli atas tanah bangunan tersebut. Contoh perjanjian jual beli barang elektronik. Dengan di tanda tanganinya surat perjanjian ini, maka ada banyak orang yang mencari contoh surat perjanjian jual beli rumah doc, yang adalah dalam bentuk file untuk kemudian didownload. Demikian surat perjanjian jual beli rumah ini dibuat dengan penuh kesadaran dan tanpa paksaan antara para pihak dan supaya dipatuhi sebagai hukum yang mengikat para pihak.

Berikut file document contoh surat perjanjian jual beli rumah yang sudah kami susun rapi siap untuk anda.

Jadi, anda tentunya perlu memahami apa saja yang dibutuhkan atau isi dari surat pernjanjian oleh karena itu diperlukan surat perjanjian jual beli rumah seperti contoh berikut. Uang tanda jadi ditujukan untuk mengesahkan status dimulainya proses penjualan dan mengikat kedua belah pihak. Surat perjanjian saat ini menjadi salah satu surat penting yang digunakan sebagai bukti adanya perjanjian antara satu orang dengan orang yang lainnya. Maka, sejak surat perjanjian jual beli ini di tanda tangani oleh pihak pertama dan pihak. Maka sejak surat jual beli ini kami tanda tangani bersama, tanah tersebut menjadi hak milik pihak ke ii. Surat perjanjian jual beli tanah haruslah dibuat seinformatif mungkin, artinya sejak ditandatanganinya surat perjanjian ini maka tanah tersebut di atas beserta segala keuntungan maupun kerugiannya sepenuhnya menjadi hak milik pihak kedua. Berencana membeli atau menjual rumah ? Informasi tentang surat dan identitas pihak. Memenuhi perjanjian ini yaitu memberikan tanda jadi sebagaimana disebutkan dalam pasal 2 ayat (1) maka. Salah satunya adalah memastikan surat perjanjian jual beli atau spjb rumah sudah diterima oleh anda. Kami yang bertanda tangan di bawah ini Berikut file document contoh surat perjanjian jual beli rumah yang sudah kami susun rapi siap untuk anda. Jika iya, berikut ini adalah contoh surat perjanjian jual beli rumah yang bisa di download.

Posting Komentar (0)
Lebih baru Lebih lama